- 4 Bed
- 3 Bath
- 2018 sqft
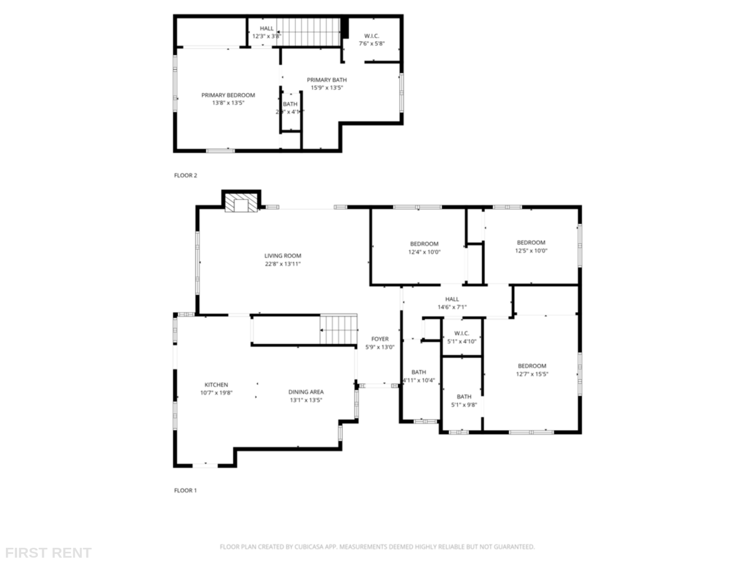
Spacious 4-Bedroom, 3-Bath Home with Two Primary Suites, Detached Studio, and RV Parking, Tustin, CA Welcome to 13132 Laburnum Dr in Tustin, a beautifully maintained 4-bedroom, 3-bathroom cul-de-sac home offering over 2,000 square feet of versatile living space. This property features two primary suites, a detached bonus studio, and ample RV/boat parking. The light-filled layout includes wood-style floors, French doors, and a charming stone fireplace in the main living area. The modern kitchen is equipped with granite countertops, stainless steel appliances, a gas cooktop with a range hood, and breakfast bar seating, all opening to a sunny deck patio and a spacious backyard. This home boasts two primary suites: one is a private upstairs retreat with a walk-in closet, dual vanities, a soaking tub, and a glass-enclosed shower illuminated by a skylight. The second suite is conveniently located on the main floor, making it ideal for guests or multi-generational living. Additionally, there are two more bedrooms and another full bathroom, providing even more flexibility for family, work, or creative use. Step outside to a large, low-maintenance backyard with fruit and palm trees, plus multiple patio areas for outdoor dining and relaxation. The detached studio offers extra space perfect for a home office, gym, or workshop. A gated side driveway provides secure RV or trailer parking, a rare find in Tustin. Nearby schools for this desirable neighborhood location include: - Elementary: Barbara Benson Elementary School - Junior High: C. E. Utt Middle School - High School: Tustin High School Additional Features: - Central heating and A/C, plus in-room A/C units - Attached 2-car garage and extended driveway parking. - Washer and dryer - Detached storage/workshop studio with power - Near Old Town Tustin, local parks, and The Marketplace shopping Rent: $4,995/month Living Area: 2,018 sq. ft. Bedrooms: 4 / Bathrooms: 3 Address: 13132 Laburnum Dr, Tustin, CA 92780 1. Tenant is responsible for all utilities, including electricity, gas, water, sewer, and trash service. 2. Renter's insurance is required for the duration of tenancy. 3. No co-signers or guarantors accepted. 4. A maximum of four vehicles is allowed on the property. 5. No smoking anywhere on the premises. 6. Pets are considered with an additional deposit and approval. 7. 12-month lease minimum. 8. One month's rent due at signing, and, if needed, we will prorate the second month if your move-in date is after the 1st—security deposit due at this time as well. 9. We are not able to accept Zillow or other third-party applications. If interested, we'll send a secure link to apply. 10. Each adult (18+) must submit a separate rental application, regardless of marital or familial status.
- Microwave
- Air conditioner
- Refrigerator
- Dishwasher
- Walk-in closets
- Garage parking
- Fenced yard
- Fireplace
- Stove and oven
- Pet friendly
- Private patio
- Dryer
- Heat
- Laundry hookup
- Washer
- Storage space
- Ceiling fan
- Disposal
- Double sink vanity
- Mirrors
- Pantry
- Skylight
- Tile floors
- Vaulted ceiling
- Vinyl floors
- Window coverings
- Dog friendly
- Cat friendly
$5,295.00 security deposit
 
        
        
     
             
                     
                             
                             
                             
                            